Solipsism —
The self is all that can be known to exist.

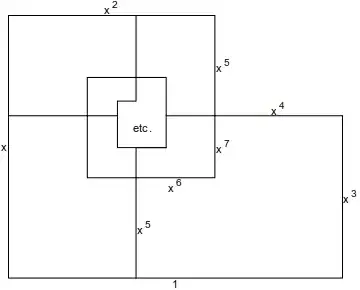
Above is a simple polygonal region divided into infinitely many different-sized copies of itself. Each copy is √2 = 1.414... times as large as the next smaller one (in terms of linear scale, not area). If the largest copy is removed, the remaining polygonal region is a scaled-down version of the original.
Can you find another simple polygon that has 4 or more sides and can be divided into infinitely many different-sized copies of itself, where the original polygonal region is geometrically similar to what remains if the largest component copy is removed?
The open-ended goal is a maximum successive-size ratio as close as possible to 1.
Reflection is allowed.   Each copy size occurs only once.   Polygons in this puzzle have _finitely_ many vertices.   Note that the goal is to minimize the _maximum_, not average or smallest, ratio between any two successively sized copies.   The large composite polygon is not included in these ratios.   A neat solution with only right angles and a maximum ratio less than 1.3 is known at pose time.
(This puzzle is similar, but with different conditions, to Unreflected Infinitely simple polygon reflexivity.)
