Iglesia de Santa María Magdalena (Sevilla)
La iglesia de Santa María Magdalena es un templo católico y la sede de una real parroquia de Sevilla, Andalucía, España. El edificio es de estilo barroco. Fue proyectada por Leonardo de Figueroa y levantada entre finales del siglo XVII y comienzos del siglo XVIII, como Iglesia del convento de San Pablo el Real. Se declaró Bien de Interés Cultural en 1970.[1]
| Iglesia de Santa María Magdalena | ||
|---|---|---|
| bien de interés cultural | ||
![]() | ||
| Localización | ||
| País |
| |
| Comunidad |
| |
| Localidad |
| |
| Coordenadas | 37°23′26″N 5°59′54″O | |
| Información religiosa | ||
| Culto | Iglesia católica | |
| Diócesis | Sevilla | |
| Orden | Clero Diocesano | |
| Advocación | María Magdalena | |
| Párroco | Francisco Román Castro | |
| Historia del edificio | ||
| Fundación | 1694 | |
| Construcción | 1694-1709 | |
| Arquitecto | Leonardo de Figueroa | |
| Datos arquitectónicos | ||
| Tipo | Real Parroquia | |
| Estilo | Barroco | |
| Año de inscripción | 25 de agosto de 1970 | |
|
Bien de interés cultural Patrimonio histórico de España | ||
| Categoría | Monumento | |
| Código | RI-51-0003850 | |
| Declaración | 24 de julio de 1970 | |
| Sitio web oficial | ||
Actualmente es la sede canónica de la Hermandad Sacramental de la Magdalena, de la Hermandad de Nuestra Señora del Amparo, de la Hermandad de la Quinta Angustia y de la Hermandad del Calvario.
Historia
En 1248, el rey Fernando III cedió unas casas en la collación de Santa María a los dominicos.[2] La orden fundó en este lugar el convento de San Pablo. En el 1250, en un capítulo provincial de la orden en Toledo, se asignó un número de frailes al convento. La donación de los inmuebles fue confirmada en 1255 por Alfonso X.[2]
En 1324, el infante Felipe, que veneraba en gran medida a la Virgen de las Fiebres, concedió muchas limosnas a este convento.[3] Esta imagen alcanzó notoriedad por su supuesta intervención en la curación de Pedro I en 1351. En agradecimiento, el rey ofreció al convento una estatua suya de plata, que quedaría destruida en un derrumbe en el año 1691.[2] En torno a 1353, el convento quedó destruido por un incendio, Pedro I contribuyó a las obras de reparación en 1361.[3]
En 1421, el cabildo de la ciudad concedió tres mil maravedíes para el capítulo general de la orden que tuvo lugar en el convento de San Pablo.[3] Este cabildo también dio otras donaciones para diversos cultos.[4] Los Reyes Católicos, que se encontraban en Medina del Campo, otorgaron al convento limosnas para la reparación de la techumbre de la iglesia, que había sido derribada por una fuerte tempestad, en 1504.[3] El convento también recibió muchas ayudas de destacadas familias locales, algunas de las cuales recibieron sepultura en su iglesia.[4]
En 1504, se creó en su seno un centro de estudios, Estudio General, que en 1552, por bula del papa Julio III, pasó a tener el rango de universidad.[5]

En este convento se hospedaron muchos frailes dominicos que fueron, posteriormente, a evangelizar América y Filipinas. Algunas de estas misiones a las Indias fueron organizadas por Bartolomé de las Casas. En 1544 fue nombrado en este convento obispo de Chiapas.[5]
Fue el mayor convento dominico de Andalucía.[3] A principios del siglo XVII contaba con 200 frailes.[6] En 1649 fallecieron 85 frailes por la epidemia de peste que asoló la ciudad.[6] En 1757 había 190 frailes.[6]

Tras los desbordamientos del río Guadalquivir que tuvieron lugar entre 1691 y 1692 la construcción medieval sufrió derrumbes y, finalmente, fue demolida para levantarse de nuevo.[7] El templo actual fue realizado entre 1694 y 1709.[8]
Durante la invasión francesa de Sevilla, las tropas saquearon el convento y lo ocuparon como cuartel y la iglesia del convento fue convertida en iglesia de Santa María Magdalena, en sustitución de la parroquia con esa titular que fue derribada en 1811, de acuerdo con el plan de derribos del asentista Mayer.[9][6] La antigua iglesia parroquial se encontraba en la zona que actualmente ocupa la plaza de la Magdalena.[10]
Posteriormente, los dominicos regresaron al convento, comenzaron a arreglar los desperfectos y volvieron a convertir este templo en su iglesia. La antigua parroquia de la Magdalena comenzó a reconstruirse en la parcela que ocupaba. Tras la desamortización de 1835 el convento fue dedicado a oficinas civiles y en 1842 se abandonó la reconstrucción de la antigua iglesia parroquial para tener aquí la sede definitiva de la iglesia de Santa María Magdalena.[10][11]
El convento fue reformado en su interior para adaptarlo a los nuevos usos civiles. En 1889 se derribó el compás y su portada.[11] En julio de 1906 el antiguo convento, transformado en Gobierno Civil, fue arrasado por un incendio.[11] A lo largo del siglo XX se derribaron sus dos claustros y otras dependencias para proyectos de urbanismo.[11] En el siglo XXI, solo se conservan del antiguo convento la iglesia, la sacristía y la Capilla de Montserrat.[12]

Exterior

La portada principal se encuentra a los pies de la nave central. Originalmente daba al compás del convento, aunque en la actualidad se abre a la calle Cristo del Calvario.[13] Está realizada en piedra. En el frontispicio hay dos jarrones, un escudo de los dominicos y un busto de Santo Tomás de Aquino atribuido a Pedro Roldán.[14] En esta fachada hay un gran rosetón rodeado por las cuentas de un rosario, realizadas en cerámica azul, rodeado a su vez por una corona de flores.[14] En la parte superior hay un balcón con la siguiente distribución: en los lados hay dos espadañas y, en el centro, otro cuerpo con una entrada al balcón.[14]
En el lado de la epístola hay tres accesos. Uno es la sencilla puerta a la Capilla de la Hermandad de la Quinta Angustia. El segundo es una portada usada habitualmente para acceder al templo. En el frontispicio está el escudo de la orden y, en la parte superior, las esculturas de San Fernando flanqueado por San Isidoro y San Leandro.[15] El tercer acceso es una portada que comunica con el transepto. En el frontispicio de esta portada se encuentra una estatua de Santo Domingo de Guzmán, atribuida a Pedro Roldán.[15] Sobre la misma hay un tejaroz sostenido por ternapuntas de hierro forjado.[16]
La cúpula del crucero es la primera de la ciudad realizada sobre tambor octogonal.[13] Cuenta con un lucernario en su parte superior y está coronada por una corona de hierro forjado.[13] Figueroa diseñó cúpulas similares para la iglesia de San Luis de los Franceses y para la colegiata del Salvador.[17]
Interior
.jpg.webp)
El interior del templo consta de tres naves longitudinales y una transversal.[8] Las nave central, más alta y ancha, está dividida en cinco tramos.[8] En la parte alta de la entrada principal hay un coro y al fondo de la iglesia se encuentra el presbiterio.[8]
Cúpula
En el crucero se encuentra la cúpula, que se encuentra decorada en su interior con pinturas temáticas de la Gloria de la Virgen. En los ocho segmentos hay medallones con letras que componen la frase "Ave María" y pinturas de ángeles sosteniendo elementos que representan las letanías marianas.[18] En los intradós de los arcos torales se representan la Iglesia católica, la Provindencia, la Misericordia, la Sabiduría y la Justicia divinas.[19] En los cuatro pilares que sostienen la cúpula hay pintados 16 dominicos, identificados como: Sanctus Antoninus, B. Gundisalvus de Amarantho, B. Petrus Mártir de Verona, B. Joannes Martin de Colonia, B. Benedictus XI, B. Agustinus Gazotto, Sanctus Pius V, B. Albertus Magnus, Sanctus Hyacinthus, B. Jacubus de Mavania, Sanctus Raimundus de Peñafort, B. Petrus González Telmo, Sanctus Ludovicus Beltrán, B. Henricus Suzón, Sanctus Vecentius Ferrer y B. Ambrosius Sancedonius.[20] Este conjunto fue realizado por Lucas Valdés.[20]
Altar mayor
En la bóveda del altar mayor está representando el Triunfo de la Fe, con santo Domingo de Guzmán y santo Tomás de Aquino rodeados por una gran corte de ángeles. En los cuatro medallones situados en las pechinas de la bóveda hay representaciones de los cuatro continentes, representando la evangelización del orbe. Este conjunto también es de Lucas Valdés, datado entre 1710 y 1715.[18]
Retablo mayor

En 1577, el prior del convento contrató un retablo para el altar mayor realizado por Juan Bautista Vázquez "el Viejo" y Miguel de Adán, que permaneció en el templo hasta el 1700 aproximadamente.[21] El actual retablo mayor puede datarse a principios del siglo XVIII, entre 1709, fecha de finalización de las obras, y 1724, año de su consagración.[22] Se ha atribuido a Leonardo de Figueroa[23] y a Pedro Duque Cornejo.[24] Constituye un retablo de grandes proporciones, el segundo mayor de la ciudad, después del de la catedral. Tiene 160 m² y dieciocho metros de alto.[22][25] Consta de banco y dos cuerpos. Se distribuye en tres calles separadas por columnas salomónicas. Fue restaurado en el año 2012, con el patrocinio de la Real Maestranza de Caballería de Sevilla.[25]
El retablo se encuentra dedicado a San Pablo, titular del primitivo convento, que está representado en la hornacina central del segundo cuerpo. En los laterales, figuran esculturas de santos relacionados con la orden dominica, San Pío V y San Benedicto XI, en el segundo cuerpo, y San Francisco y Santo Domingo de Guzmán en el primero. En el centro del tercero de los cuerpos hay un relieve de la Conversión de San Pablo y, en sus laterales, Santa Catalina de Siena y Santa Rosa de Lima.[24][26]
En el centro del primer cuerpo se abre la hornacina principal que actualmente contiene la escultura de Santa María Magdalena, que fue trasladada a este templo a mediados del siglo XIX, ya que procede de la primitiva parroquia de la Magdalena y que fue realizada en 1704 por Felipe Malo de Molina.[27] En la predela del retablo hay una Inmaculada. El resto de las esculturas del retablo, son atribuidas a Pedro Duque Cornejo de entre 1709 y 1724.[28] A los lados del retablo mayor hay dos portadas. Cada una de ellas tiene dos columnas de mármol sosteniendo sus adintelados. En uno de los dinteles hay una escultura alegórica de la Esperanza y en el otro una de la Caridad.[29]
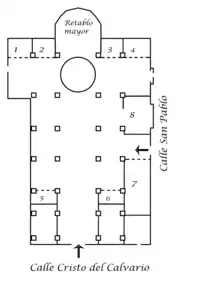
Transepto

1.- Capilla de la Virgen de la Antigua
2.- Capilla de la Virgen del Amparo
3.- Capilla del Cristo del Calvario
4.- Capilla de San Antonio
5.- Capilla de la Virgen del Rosario
6.- Capilla bautismal
7.- Capilla de la Quinta Angustia
8.- Capilla sacramental.
Lado del evangelio

En lado del evangelio del transepto se encuentran los siguientes elementos:
- Capilla de la Virgen de la Antigua. Retablo del siglo XVIII, la figura central de esta capilla es la Virgen de la Antigua, ejecutada entre 1650 y 1651 por Pedro Roldán.[30]
- Capilla de la Virgen del Amparo. Con un retablo del siglo XVIII atribuido a Cristóbal de Guadix. Esta Virgen fue realizada por Roque Balduque en torno a 1555.[31]
- Retablo de Santa Ana y la Virgen Niña. Retablo del siglo XVII. Esculturas realizadas por Francisco Ruiz Gijón entre 1675 y 1678.[28]
- Retablo de la Virgen de las Fiebres. Retablo del siglo XVII. La Virgen es atribuida a Juan Bautista Vázquez "el Viejo" de 1565.[28]
- Retablo de Jesús con la cruz a cuestas. El Jesús fue esculpido por Gaspar del Águila y policromado por Antonio de Alfián en 1587. Porta una cruz de carey con marco de plata. Proviene de la antigua parroquia de Santa María Magdalena y fue conocido primero, simplemente, como Cristo con la cruz a cuestas y Cristo de la Magdalena entre los siglos XVI y XVIII y como Nazareno de las Fatigas posteriormente.[32]
Retablo de Santa Ana y la Virgen Niña. Retablo del siglo XVII. Esculturas realizadas por Francisco Ruiz Gijón entre 1675 y 1678.
Lado de la epístola


En el lado de la epístola del transepto se encuentran los siguientes elementos:
- Capilla del Cristo del Calvario. En un retablo compartimentado con columnas salomónicas que data de principios del siglo XVIII, cerrado con una reja del mismo periodo, se encuentra en el centro las esculturas del Cristo del Calvario de Francisco de Ocampo (1612), la Virgen de la Presentación de Juan de Astorga (C. 1839) y San Juan Evangelista también de Astorga (C. 1839), todas ellas titulares de la Hermandad del Calvario.[33]
- Santa Catalina de Siena. Escultura del siglo XVIII.[34]
- Capilla de San Antonio de Padua. Con un retablo de principios del siglo XVIII. En el banco del retablo hay un Ecce Homo del siglo XVII.[34]
- Retablo de la Virgen del Carmen. Retablo y escultura del siglo XVIII.[34]
- Retablo de San José con el Niño. Retablo y escultura del siglo XVIII.[34]
Capilla de la Quinta Angustia
Se encuentra adosada a la nave del evangelio. Se trata de un espacio de entre finales del siglo XIV y principios del siglo XV. Fue reformada a comienzos del siglo XVIII pero recuperó su fisionomía original en una restauración en 1917.[35] En el siglo XV debieron ser tres capillas independientes, cada una con su cúpula.[36] Tiene pinturas murales de naturaleza y tres escudos heráldicos, dos de los Ayala y uno de los Medina. En 1896 se le colocaron zócalos con azulejos de la Cartuja.[36]
Esta capilla es la sede de la Hermandad de la Quinta Angustia. Esta hermandad tiene como titulares al Jesús del Descendimiento (atribuido a Pedro Roldán de 1659) y a la Virgen de la Quinta Angustia (Vicente Rodríguez-Caso, 1932).[37]
Capilla Sacramental
La capilla Sacramental es una estancia que va del transepto a la entrada lateral del templo. Fue primitivamente capilla de la Virgen del Rosario, pero tras el traslado de la parroquia a este templo, terminó convertida en capilla sacramental. Alberga un retablo de 1817, original de Miguel Albín.[38]
Este retablo consta de banco, cuerpo y ático. El banco está compuesto por una mesa de altar, con su frontal adornado con una columnata que contiene florones, y puertas laterales. Sobre la mesa de altar se sitúa un sagrario de plata de finales del siglo XVIII, que fue retocado por Fernando Marmolejo en 1954. El cuerpo del retablo está estructurado por cuatro columnas de fustes estriados y orden corintio, que determinan una calle central y dos entrecalles. El cuerpo central, que se encuentra adelantado, alberga un camarín con baldaquino interior formado por arcos de medio punto sustentados por columnas, en cuyo interior se encuentra una imagen de la Inmaculada Concepción del siglo XVIII y en las entrecalles, dos arcángeles de finales del siglo XVII, realizados por Juan Bautista Patroni. En el ático aparece un relieve de la Santísima Trinidad de Manuel María Fernández flanqueado por columnas pareadas de orden corintio y el resto del fuste estriado. En los extremos, sobre el entablamento del cuerpo del retablo, se sitúan los ángeles de Patroni sobre ménsulas. El retablo se encuentra pintado imitando mármol y con los perfiles dorados.[38][39]
Capilla bautismal


A los pies del templo, en el lado de la epístola, se encuentra la capilla bautismal, donde se encuentra la pila bautismal procedente de la antigua parroquia de Santa María Magdalena, en la que fue bautizado Bartolomé Esteban Murillo el 1 de enero de 1618. La familia Esteban Murillo, estuvo vinculada a esta parroquia, durante más de sesenta años, que comenzó con el matrimonio de los progenitores del pintor, que continuó con su partida de bautismo y de matrimonio y los bautizos de sus dos primeros hijos.[40]
En la misma capilla, se encuentra el Cristo del Gonfalón. Se trata de una talla atribuida a Nicolás de León de 1536. Aparece formando parte de una escena de Calvario donde también figuran las imágenes de la Virgen María y San Juan, de pie y uno a cada lado, situados a un nivel algo inferior. Pertenecía a una antigua hermandad ya extinguida llamada Cofradía de la Vida de Cristo y Confalón cuya finalidad era practicar obras de misericordia y piedad y estaba agregada a una hermandad de Roma del mismo nombre.[41][42]
Capilla de la Virgen del Rosario
En el lado del evangelio y a los pies del templo se encuentra la capilla de la Virgen del Rosario. Retablo del siglo XVIII.[43] La Virgen del Rosario fue realizada por Cristóbal Ramos en torno a 1787.[44]
Pintura
.jpg.webp)
.jpg.webp)
Destacan las pinturas al fresco de Lucas Valdés sobre los muros, con temas relacionados con la Orden de Santo Domingo, los misterios del rosario y los apóstoles. Muchas de ellas se encuentran muy deterioradas. La mayor parte de las cuales fueron realizadas por Lucas Valdés entre 1710 y 1715[18] Entre las obras de este autor está la de Salomón realizando una ofrenda en el templo.[45]
Mural
- El Triunfo de la Fe. Este fresco, obra de Lucas Valdés, se encuentra en la bóveda del presbiterio, representa el triunfo de la Fe sobre la herejía en los cuatro continentes gracias a la intervención de los frailes dominicos. La figura central representa a la Fe, a ambos lados se encuentran los arcángeles San Miguel y San Rafael rodeados por ángeles y músicos que tocan desde dos balcones laterales. Debajo de este conjunto entre nubes se encuentran los dos principales santos de la orden Dominica, Santo Domingo de Guzmán con una espada en llamas en su mano derecha y Santo Tomas de Aquino con una palma en la mano derecha y un pliego de papel abierto en la izquierda. Ambos triunfan sobre la herejía y la abominación que se precipitan hacia el abismo. En las esquinas cuatro medallones representan los cuatro continentes.
- La entrada triunfal de San Fernando en Sevilla entre las alegorías de la fortaleza y de Sevilla liberada. Se encuentra en lado derecho del crucero y es obra de Lucas Valdés. Se representa la entrada de este rey en la ciudad acompañado por la Virgen de los Reyes y un gran séquito eclesiástico entre el que se encuentra Santo Domingo de Guzmán y San Pedro Nolasco. Desde arriba contemplan el acto San Isidoro y San Clemente.[20]
- Auto de Fe en tiempos de San Fernando. Se encuentra situado en el lado izquierdo del crucero y es obra de Lucas Valdés.[20] Se representa un Auto de Fe en el que aparecen frailes dominicos y el mismo San Fernando que transporta leña para la hoguera. Según la leyenda este fue un acontecimiento real que se celebró en Sevilla el 28 de octubre de 1703 en el que se ejecutó entre otros a un personaje llamado Diego López Duro vecino de Osuna (Sevilla) por practicar la religión judía. También aparece un grupo de dominicos llevando en burros a los condenados.[20]
- La Virgen del Rosario protegiendo las naves españolas en la batalla de Lepanto. Obra de Lucas Valdés. Este fresco está enmarcado por una yesería dorada. En él aparece la batalla de Lepanto y, sobre una nube, podemos ver a la Virgen del Rosario. Según la tradición, el rezo del rosario contribuyó a la victoria de los cristianos, que tuvo lugar el 7 de octubre de 1571, siendo papa Pío V, dominico. Los frailes dominicos, antiguos propietarios de la iglesia, tienen una devoción especial al santo rosario.[39]
La Virgen del Rosario protegiendo las naves españolas en la batalla de Lepanto. Obra de Lucas Valdés.
Lienzos
Se representa en este cuadro un milagro que tuvo lugar tras la oración de Santo Domingo. La Santísima Virgen acompañada de dos bellas jóvenes que son Santa María Magdalena y Santa Catalina, se apareció ante el lecho de Reginaldo de Orleáns que se encontraba enfermo por unas fiebres que hacían temer por su vida. La Virgen ungió la cabeza del paciente, quedando este completamente restablecido.
- Francisco de Zurbarán — Santo Domingo en Soriano, también conocido como La entrega milagrosa del verdadero retrato de Santo Domingo en Soriano.
El milagro de la Virgen del Rosario en Soriano Calabro, Francisco de Zurbarán (1626), óleo sobre lienzo. La Virgen entrega a un monje dominico de Soriano Calabro una pintura de Santo Domingo de Guzmán.
Según la tradición, en la noche del 15 de septiembre de 1530, la Santísima Virgen, acompañada de Santa María Magdalena y Santa Catalina, se aparecieron en el convento dominico de Soriano, en Calabria, al hermano sacristán fray Lorenzo da Grottaria. Santa Catalina portaba una imagen de Santo Domingo, que le fue entregada al fraile para que la colocase sobre el altar mayor de la iglesia del convento.[46] Desde entonces esta imagen ha gozado de gran devoción y nobles, reyes y papas han contribuido al engrandecimiento del santuario. Varios artistas han representado este milagro. El cuadro del convento de San Pablo de Sevilla fue realizado por Zurbarán en 1626.[46]
Orfebrería

Magnífica Custodia procesional de 2,25 metros de altura iniciada por Cristóbal Sánchez de la Rosa en 1678 continuada por Juan Laureano de Pina y rematada por Blas Amat y Cortés en 1790. Esta custodia es propiedad de la hermandad Sacramental de la Parroquia.
Es de planta octogonal y tres cuerpos de altura que culminan con un pedestal sobre el que se encuentra una estatua de la fe. Los dos cuerpos inferiores disponen de columnas salomónicas y rectas que están decorados con motivos vegetales. En el cuerpo inferior puede contemplarse una balaustrada con estatuas de los cuatro evangelistas y en el siguiente se representan figuras de ángeles. En el centro una escultura de la Inmaculada.[47]
Otros elementos
- En la nave de la epístola se encuentra el retablo de la Asunción de la Virgen. En el centro hay un relieve de la Asunción realizado por Juan de Mesa en 1619.[43] En el ático de este retablo hay otro relieve de la Coronación de la Virgen, del mismo autor.[43]
- Virgen Milagrosa.[27]
Hermandades
Varias hermandades tienen sede en esta iglesia:
- Hermandad Sacramental de la Magdalena: Fue fundada en 1575. Realiza una procesión eucarística anual por el barrio en la festividad del Corpus Cristi. En el cortejo se procesiona con un baldaquino (Joaquín Bilbao y Antonio Infante, 1924) que alberga un Niño Jesús (Jerónimo Herández, 1582), con una Inmaculada (Benito de Hita y Castillo, mediados del siglo XVIII) y con la custodia barroca.[48]
- Hermandad de Nuestra Señora del Amparo: En el siglo XVI el arzobispo Fernando Valdés fundó la Hermandad del Amparo de María Santísima y San José para acocer a niños expósitos. La hermandad de gloria actual es una continuación de la fundada, con esta misma titular, a comienzos del siglo XVIII. En sus reglas de 1735 figuraba que procesionaría el 18 de diciembre, Día de la Expectación del Parto de Nuestra Señora, aunque poco después se cambió al Día del Patrocinio de la Virgen, el segundo domingo de noviembre.[49]
- Hermandad de la Quinta Angustia: En 1575 se fundó la Hermandad del Dulce Nombre de Jesús en la iglesia de San Vicente de Sevilla. En 1587 esta hermandad se trasladó al convento de San Pablo,[3] donde se hizo filial de la orden y dependiente del prior hasta 1764.[4] En 1851 se unió a la Hermandad del Descendimiento de Nuestro Señor Jesucristo y Quinta Angustia de María Santísima, fundada en 1540.[50] Hace estación de penitencia el Jueves Santo.
Paso de la Quinta Angustia. - Hermandad del Calvario: Existió otra hermandad con estos titulares fundada en 1571 en el hospital de Nuestra Señora de Belén, que se trasladó posteriormente a la iglesia de San Ildefonso y que desapareció a finales del siglo XVIII.[51] La actual es una refundación realizada en 1886 en esa iglesia de San Ildefonso. En 1916 se trasladó a la iglesia de la Magdalena.[52] Hace estación de penitencia en la madrugada del Viernes Santo.
La Hermandad de Montserrat tiene su sede en una capilla que formó parte del antiguo compás del convento, en la calle Cristo del Calvario. A finales del siglo XVI se fundó la Hermandad del Cristo de la Conversión del Buen Ladrón y Nuestra Señora de Montserrat. Esta se trasladó a mediados del siglo XVII al convento de San Pablo. Ahí decayó la misma y vendió sus enseres a comienzos del siglo XIX. En 1849 la hermandad fue refundada.[53] Desde 1546 había sido la sede de la Hermandad de Nuestra Señora de la Antigua, que se fusionó en 1596 con la Hermandad de los Siete Dolores. La Hermandad de la Antigua y Siete Dolores se extinguió a comienzos del siglo XIX, quedando la capilla abandonada hasta que volvió a ser ocupada en 1938 por la Hermandad de Montserrat.[54] Hace estación de penitencia el Viernes Santo.
Galería
Altar de las Ánimas Benditas del Purgatorio.
Retablo de la Virgen de las fiebres de Juan Bautista Vazquez, el Viejo (h. 1561)
Representación de Cristo camino del Calvario, su sufrimiento y fatigas (s. XVI). Talla policromada del escultor Gaspar del Águila (1587).
Capilla de la Virgen del Amparo.
Nuestra Señora del Amparo, obra de Roque Balduque. Imagen titular de la Hermandad de Nuestra Señora del Amparo, mediados del siglo XVI.
Piedad. Anónimo sevillano (s. XVII).
Capilla de la Hermandad de la Quinta Angustia. Pintura (1659-1660), óleo sobre lienzo, procedente del retablo mayor de la iglesia del desaparecido Convento de San Benito de Calatrava (Sevilla). San Miguel Arcángel, vestido con indumentaria romana ataca a Lucifer.
Capilla de la Hermandad de la Quinta Angustia. Pintura, óleo sobre lienzo, de Juan de Valdés Leal, contratada por el desaparecido Convento de San Benito de Calatrava (Sevilla) durante su etapa reconstructiva en el siglo XVII, pinturas destinadas para un retablo de Francisco Dionisio de Ribas (1659-1661).
Véase también
Bibliografía
- Matilde Fernández Rojas (2008). Patrimonio artístico de los conventos masculinos desamortizados en Sevilla durante el siglo XIX. Benedictinos, dominicos, agustinos, carmelitas y basilios. Secretariado de Publicaciones de la Diputación de Sevilla. ISBN 978-84-7798 259-3.
- Félix González de León (1844). Noticia artística, histórica y curiosa de todos los edificios públicos, sagrados y profanos de esta muy noble, muy leal, muy heroica e invicta Ciudad de Sevilla, y de muchas casas particulares con todo lo que les sirve de adorno artístico I. Hidalgo.
- Morales, Alfredo; Sanz, María Jesús; Serrera, Juan Miguel; Valdivieso, Enrique (2008). Diputación de Sevilla - Fundación José Manuel Lara, ed. Guía artística de Sevilla y su provincia. ISBN 978-84-96152-41-0.
- José Fernández (2004). Lucas Valdes. 1661-1725. Secretariado de Publicaciones de la Diputación de Sevilla. ISBN 84-7798-201-5.
- Diego A. Cardoso Bueno (2006). Sevilla. El Casco Antiguo. Historia, arte y urbanismo. Guadalquivir Ediciones. ISBN 9788480931540.
Referencias
- «Iglesia de la Magdalena y Capilla de Nuestra Señora de Montserrat». Base de datos de Patrimonio Inmueble Andaluz. Instituto Andaluz de Patrimonio Histórico. Consultado el 22 de mayo de 2017.
- Fernández Rojas, 2008, p. 77.
- Fernández Rojas, 2008, p. 78.
- Fernández Rojas, 2008, p. 79.
- Fernández Rojas, 2008, p. 82.
- Fernández Rojas, 2008, p. 83.
- Fernández Rojas, 2008, p. 88.
- Fernández Rojas, 2008, p. 89.
- González de León, 1844, pp. 98-101.
- «Plaza de la Magdalena». Ayuntamiento de Sevilla. Archivado desde el original el 12 de septiembre de 2017. Consultado el 22 de mayo de 2017.
- Fernández Rojas, 2008, p. 84.
- Fernández Rojas, 2008, p. 85.
- Fernández Rojas, 2008, p. 90.
- Fernández Rojas, 2008, p. 93.
- Fernández Rojas, 2008, p. 94.
- Fernández Rojas, 2008, p. 95.
- Francisco Pinto Puerto. «El cimborrio de madera del antiguo convento de San Pablo de Sevilla». Actas del Cuarto Congreso Nacional de Historia de la Construcción, Cádiz, 27-29 enero 2005, ed. S. Huerta, Madrid: I. Juan de Herrera, SEdHC, Arquitectos de Cádiz, COAAT Cádiz, 2005.
- Fernández Rojas, 2008, p. 130.
- Fernández Rojas, 2008, pp. 130-131.
- Fernández Rojas, 2008, p. 131.
- Fernández Rojas, 2008, p. 104.
- «Retablos». rpmagdalena.org. Consultado el 7 de enero de 2018.
- Fernández Rojas, 2008, p. 106.
- Morales, 2008, p. 166.
- «Montaña de oro y madera en la Magdalena». El Correo de Andalucía. 12 de agosto de 2012.
- Fernández Rojas, 2008, p. 107.
- Fernández Rojas, 2008, p. 109.
- Fernández Rojas, 2008, p. 110.
- Fernández Rojas, 2008, p. 91.
- Morales, 2008, p. 167.
- Fernández Rojas, 2008, p. 108.
- José Roda Peña (2010). El Nazareno de las Fatigas y su capilla en la parroquia de Santa María Magdalena de Sevilla (22). Laboratorio de Arte. Revista del Departamento de Historia del Arte de la Universidad de Sevilla. pp. 73-101. ISSN 1130-5762
- Fernández Rojas, 2008, p. 114.
- Fernández Rojas, 2008, p. 115.
- Fernández Rojas, 2008, p. 91-92.
- Fernández Rojas, 2008, p. 92.
- Hermandad de la Quinta Angustia. Consejo General de Hermandades de Sevilla. Consultado el 21 de mayo de 2017.
- Ros González, Francisco (2002). «Miguel Albín, maestro tallista en la Sevilla de comienzos del siglo XIX». Laboratorio de Arte (Universidad de Sevilla) (15). Consultado el 3 de enero de 2018.
- Fernández Rojas, 2008, p. 119.
- López Gutiérrez, Antonio J.; Ortega López, Aurora J. (2017). Universidad Pablo de Olavide, ed. Los Esteban Murillo: una familia de feligreses en la parroquia de Santa María Magdalena. Consultado el 7 de enero de 2018.
- Fernández Rojas, 2008, p. 111.
- Real Hermandad de la Vera Cruz de Salteras, Santa María Magdalena de Sevilla a Salteras. Consultado el 20/4/2010
- Fernández Rojas, 2008, p. 116.
- Fernández Rojas, 2008, p. 113.
- Fernández Rojas, 2008, p. 159.
- Pedro Luis Echeverría Goñi. «Milagro de Santo Domingo en Soriano de las clarisas de Estella». Universidad de Navarra. Consultado el 20 de diciembre de 2018.
- Fernando Quiles García (1991). Cristóbal Sánchez de la Rosa y Juan Laureano de Pina en un proyecto común: la custodia de la Magdalena (3). Atrio. pp. 51-54. ISSN 0214-8293
- «Santa María Magdalena». Consejo General de Hermandades y Cofradías. Consultado el 22 de mayo de 2017.
- «Historia de la Hermandad del Amparo». Hermandad del Amparo. Consultado el 22 de mayo de 2017.
- Fernández Rojas, 2008, p. 80.
- «Orígenes». Hermandad del Calvario. Archivado desde el original el 3 de julio de 2017. Consultado el 22 de mayo de 2017.
- «Refundación». Hermandad del Calvario. Consultado el 22 de mayo de 2017.
- Fernández Rojas, 2008, p. 81.
- Fernández Rojas, 2008, p. 97.
